MEADOWLARK RESIDENCE
The Mid-Century Modern architecture is reminiscent of the mid-20th Century movement of combining organic design with functional comfort and smart design. The Meadowlark Residence emphasizes indoor-outdoor flow by bringing the outdoors in and indoors out. The spacious design includes rooms for gatherings, celebrations, and moments of reflection while enjoying the breathtaking ocean view.
HIGHLIGHTS
- SQFT:
- Stories:
- Design Options:
- 3,200 sqft.
- 2
- Yes
- No. Bedrooms:
- Lot Size:
- Location:
- 4
- 0.25 acres
- Cul-de-sac
- No. Bathrooms:
- Type:
- View:
- 4
- Single Family
- Ocean
- Garage:
- Year Built:
- Available:
- 2
- 2015
- Sold
INCLUDED FEATURES
Gourmet Kitchen with Breakfast Nook and Ocean View Sunset Deck, Formal Entertaining Room with Fireplace and Ocean View Sunset Deck, Spacious Master Suite with Ocean View Lanai Deck, Office/Study/Optional Bedroom 5 with Ocean View Sunset Deck, Guest Suite with Wet Bar, Teen Room/Game Room
COMMUNITY FEATURES & AMENITIES








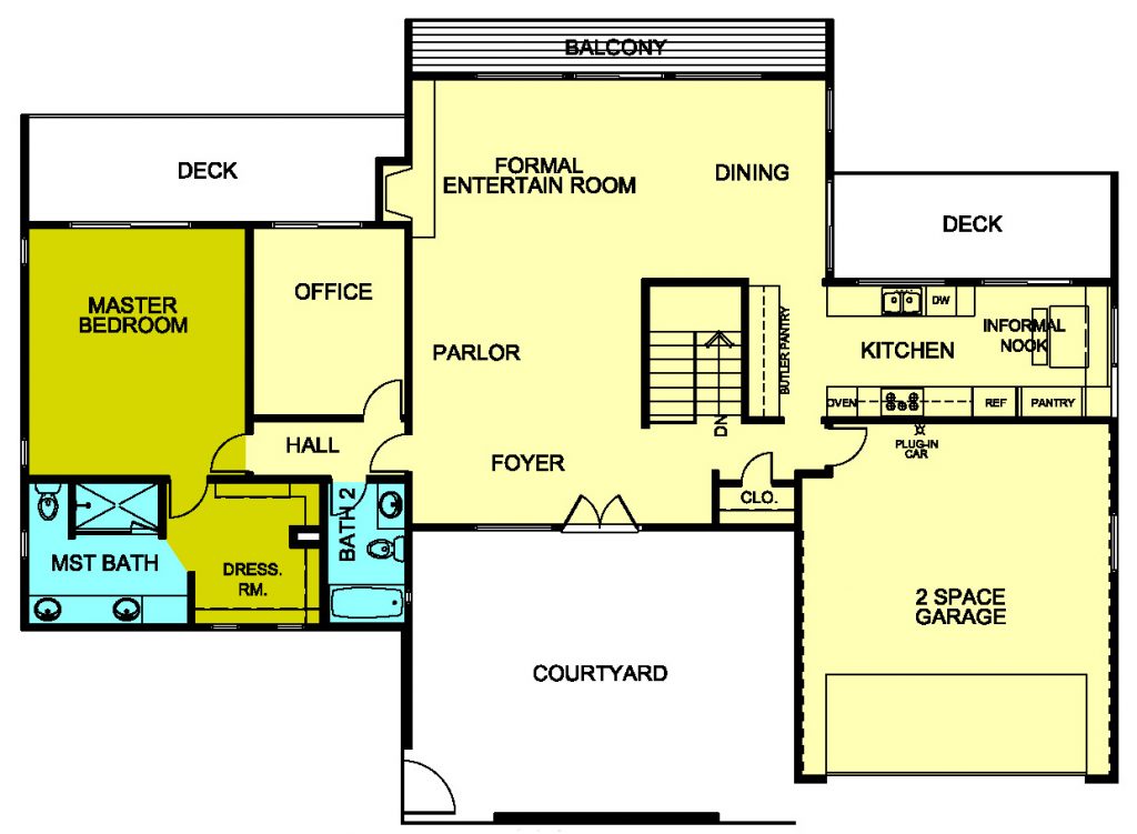
FLOORPLANS


FIRST FLOOR
SECOND FLOOR
Location
Property Location
- 3265 MEADOWLARK LANE, CARLSBAD, CA 92008
Community Details
Carlsbad Highlands neighborhood in Olde Carlsbad.
INQUIRES
Sales Contact Name Here
To inquire about the availability of this property please contact us at [email protected]